温州综合保税区位于瓯江口产业集聚区雁升路1188号,规划总面积1.44平方公里,于2020年3月3日获国务院批准设立, 2021年3月31日顺利通过国家八部委正式封关验收运营。本次公开招租的仓库位于温州综合保税区加工区一号加工厂房二、三层。加工厂房采用钢混结构建造,设有防火分区、防烟分区及相应的自动灭火系统,内置四部货梯(1台承重5吨,3台承重3吨)和一部客梯,采光、通风良好。
(仓库平面图)

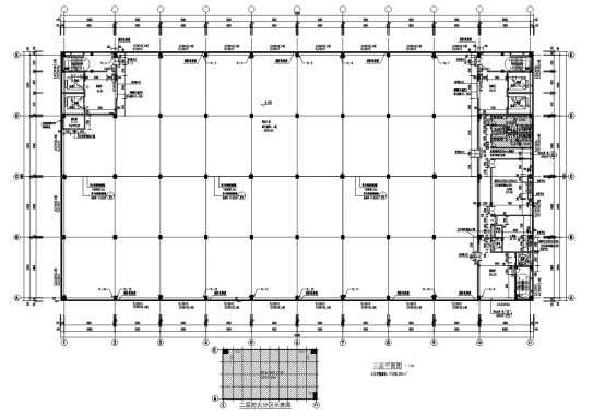
加工区一号加工厂房二层

加工区一号加工厂房三层
(一)须为中华人民共和国境内的具有独立承担民事责任能力的法人、个体工商户、自然人;(五)承租后须在温州综保区内从事跨境电商或一般贸易进出口业务。本次温州综保区仓库公开招租报名期限为2022年6月15日9时至2022年6月17日16时。意向承租人可在报名期限内到温州综合保税区综合办公楼报名。跨境电商企业至综合办公楼北楼606室(联系电话:56908388);商贸企业至综合办公楼南楼508室(联系电话:56909233)。(1)申请企业或申请人主导企业基本情况:包括主营业务、产品类型、品牌知名度、市场信誉、市场占有率、上一年度一线进出口额等(请提交营业执照等相关佐证材料)。(2)新设立企业基本情况(注册在温州综保区内):包括注册资本金、一线年进出口业务量目标、年销售额目标等。(3)新设立企业业务开展计划:包括企业计划进场时间、计划建仓周期、仓库智能化水平、首单业务计划开展时间等。(申请企业若已注册在综保区内,则以该企业作为租赁申请主体参与评分)注:报名资料格式自拟,均须加盖申请企业公章或申请人手印,报名资料涉及的相关承诺将作为仓库租赁合同组成部分,请意向承租人根据实际情况如实、慎重作出相关承诺。定租方式:根据《温州综合保税区仓库公开招租比选评分标准》(附件)对意向承租人进行评分,择优入驻。
附件:温州综合保税区仓库公开招租比选评分标准.docx